[潜山资讯] 程长庚故居、张恨水故居设计方案征求意见

[复制链接]

帖子
5351
威望
0 点
红花
88204 枚

手机认证 实名认证

潜山网 发表于 2016-5-12 17:19:59 | 显示全部楼层 |阅读模式
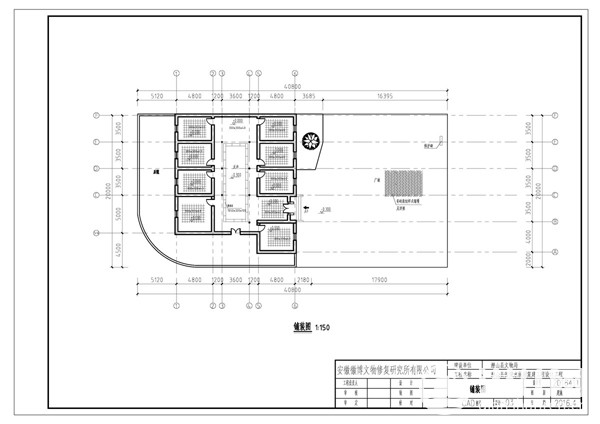
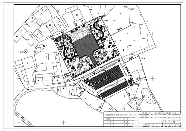
  程长庚故居、张恨水故居复建工程项目是今年县政府8件实事之一,建设单位己于2016年3月份之前完成了该工程项目的地形坐标测绘、岩土勘察、项目设计合同签订、设计资料及信息搜集等相关工作。
  4月8日上午,程长庚故居、张恨水故居复建项目评审会召开。评审团遵循“先进性、实用性、统一性、规范性”原则,注重项目设计方案的可操作性,根据故居复建整体布局设计、故居外观风格设计、功能区位划分设计、陈列室设计等内容进行评审。
  目前,安徽徽博文物修复研究所有限公司已完成这两所名人故居的规划和设计工作,为集思广益,将实事办好,特向社会公开设计方案,欢迎大家提出宝贵意见。
  建言征集时间:2016年5月12日至2016年5月22日
  联系人:汪中焰 联系电话:0556-8934118
  邮箱:ahwzy117@163.com
  潜山县文物局
  2016年5月11日
附图一:程长庚故居设计方案
1.jpg
2.jpg
3.jpg
4.jpg
5.jpg
6.jpg
7.jpg
8.jpg
附图二:张恨水故居设计方案
11.jpg
12.jpg
13.jpg
14.jpg
15.jpg
16.jpg
回复

使用道具 举报

您需要登录后才可以回帖 登录 | 立即注册

本版积分规则

QQ|关于我们|手机版|虚假信息举报电话18955601997 邮箱627298930@qq.com 涉互联网算法推荐专项举报电话18955601997 邮箱627298930@qq.com ( 皖ICP备10015146号-3 )

公安备案号34082402000327 GMT+8, 2025-10-20 16:47 , Processed in 0.058418 second(s), 38 queries .

Powered by Discuz! X3.4 Licensed

© 2001-2013 Comsenz Inc.

快速回复 返回顶部 返回列表
返回顶部 快速回复 返回列表 官方微信